APPARTAMENTO DARFO BOARIO TERME

N. 8 appartamenti + N. 1 ufficio

Classe energetica: A4
Inizio lavori: FEB 2020
Consegna chiavi in mano: FEB 2021


Descrizione dell’intervento

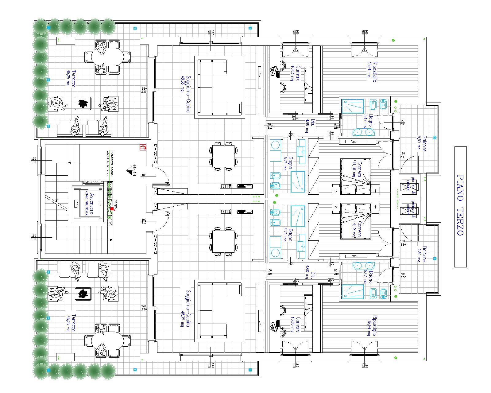
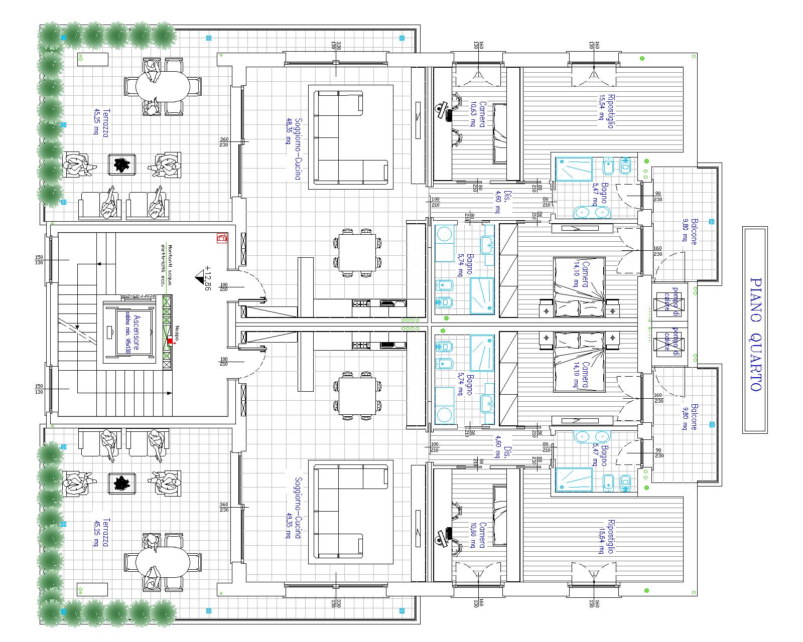
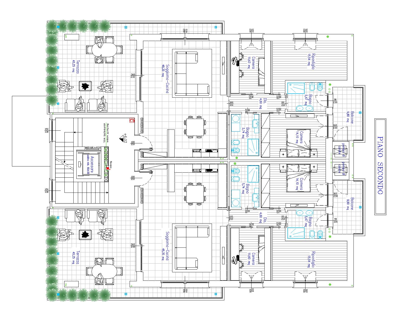
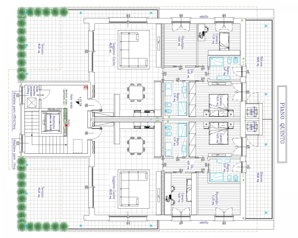
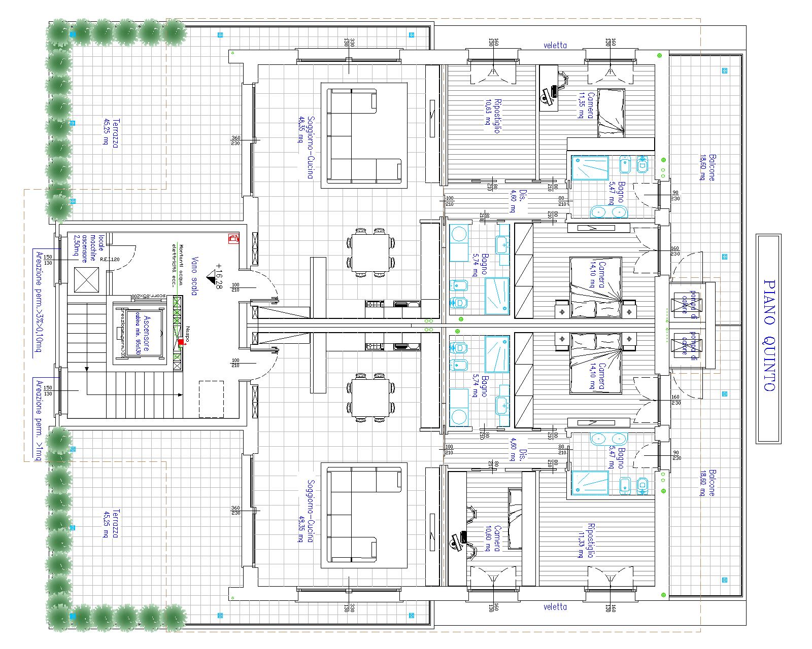
Il fabbricato in progetto a destinazione prevalentemente residenziale si compone di cinque piani fuori terra, con due unità abitative per ciascun piano, ed un piano parzialmente interrato, definito piano seminterrato, adibito ad autorimesse.Ogni unità abitativa sarà composta da: soggiorno-cottura; due camere; ripostiglio, due bagni; disimpegno; balcone; terrazza.Il piano seminterrato verrà suddiviso in box, corsia di manovra e vano scala comune dotato di ascensore. Trattandosi di autorimessa con superficie maggiore di 300 mq verrà garantita la resistenza al fuoco delle strutture (R90), la ventilazione maggiore di 1/25 della superficie in pianta, un adeguato numero di estintori e di naspi, due vie di fuga in posizioni contrapposta, delle quali almeno una con larghezza minima 1,20 m e porta del tipo REI 120 con chiusura automatica verso il vano scala. Inoltre, trattandosi di autorimessa con superficie compresa tra i 300 mq ed i 1000 mq, in base al D.P.R. 15/2011 risulta “Attività 75.1.A” soggetta a S.C.I.A. da presentare contestualmente all’agibilità. Il collegamento verticale tra i piani verrà realizzato con vano scala comune dotato di ascensore accessibile anche alle persone diversamente abili. L’accesso al vano scala comune avverrà tramite percorso pedonale, direttamente dalla strada comunale Via Polline, così come l'accesso alle autorimesse tramite apposita rampa di pendenza < 20%.


Sistemi costruttivi e rifiniture

Per le strutture, i sistemi di coibentazione e le finiture vi invitiamo a prendere visione del capitolato costruttivo descrittivo nella sezione download.


Download

Immagini dell'immobile

  • Comune: Darfo Boario Terme
  • Indirizzo: Via Polline
  • Anno di costruzione: 2020
  • Tipologia della casa: Appartamento Quadrilocale
  • Dimensioni: 132 m2
  • Numero di camere: 3
  • Numero di bagni: 2
  • Terrazzi: 54 m2
  • Garage: Singolo
  • Classe energetica: A2 in progetto
Ufficio : 0364 53 58 80
Cellulare e Whatsapp: 348 70 63 058
Email: info@abitare-green.it
PEC: ag@lamiapec.it

Newsletter

Iscriviti alla nostra newsletter, riceverai le nostre offerte per e-mail.


A.G. S.R.L. - Darfo Boario Terme (BS) Piazza Fiorini Tolmino 1 - CAP 25047 - REA: BS-521913 - C.F. e Partita I.V.A. 03295450989 - Capitale Sociale 35.000,00€

Copyright © 2020 AG immobiliare. Powered by crea .one